terça-feira, 3 de agosto de 2010

Revit System 2_ O primeiro padrão mundial em 3D paramétrico

Lembranças do Revit Systems 2 - 2006., Primeiros passos...


Desenvolvido para interagir com desenhos paramétricos 3D com aplicação do Bim.

A look at the latest addition to the Revit platform System 2.

Um opinião sobre a mais recente adição à plataforma Revit System  2.






Editor’s Note:


For those of you interested in a further look at Revit Systems, the upcoming session of Autodesk University will include numerous classes. If you don’t make it to any ofthem this time around they are sure to be repeated in years to come.


—Chris Fox, AUGI Revit Editor






Nota do Editor:


Para aqueles interessados em acompanhar com uma maior visão de aprendizado e conhecimento do Revit Systems 2, devem atentar para a próxima sessão da Autodesk University que inclui numerosas classes para o seu aperfeiçoamento e aprendizado. Se você não o fez desta vez a qualquer uma sessão, A Autodesk têm a certeza que será repetido em anos vindouros e provavelmente nas novas versões de lançamento.


-Chris Fox, Revit AUGI Editor


MEP in Revit
The steady expansion of the Autodesk® Revit® platform’s profile as the worldwide standard application for building design continues. As of Release 1 of Revit Systems, currently available in Imperial units only,  Mechanical/Electric/Piping dimension of building design appears in the Building Information Model.
In this article we will present a necessarily brief look at the basic tools that Revit now provides for planning, design, and documentation of systems that deliver and control the interior environment—air, water, light, temperature, and electrical power—throughout modern buildings.
Mechanical Eléctrical and Plumbing no Revit

Revit em Mep
A expansão contínua do perfil da Autodesk ® com a plataforma Revit ® como a aplicação padrão mundial para  projeto de construção em todo o mundo. A partir da 
aplicação padrão para o projeto de construção contínuo. A partir do 1º lançamento do Revit Systems, atualmente disponíveis no modo Imperial apenas suas unidades de dimensões tanto na mecânica, elétrica e tubulações com todas as dimensão do projeto do edifício aparecem no modo de BIM Building Information Model (Informação do Modelo de Construção).
Neste artigo iremos apresentar uma breve explanação tanto quanto necessária sobre as ferramentas básicas que o Revit Mep agora proporciona para o planejamento do projeto e documentação de sistemas que se propõe a controlar o ambiente interior em climatização do ar, sistemas de encanamentos água, projetos de iluminação, temperatura e energia elétrica controlados em todos edifícios modernos.

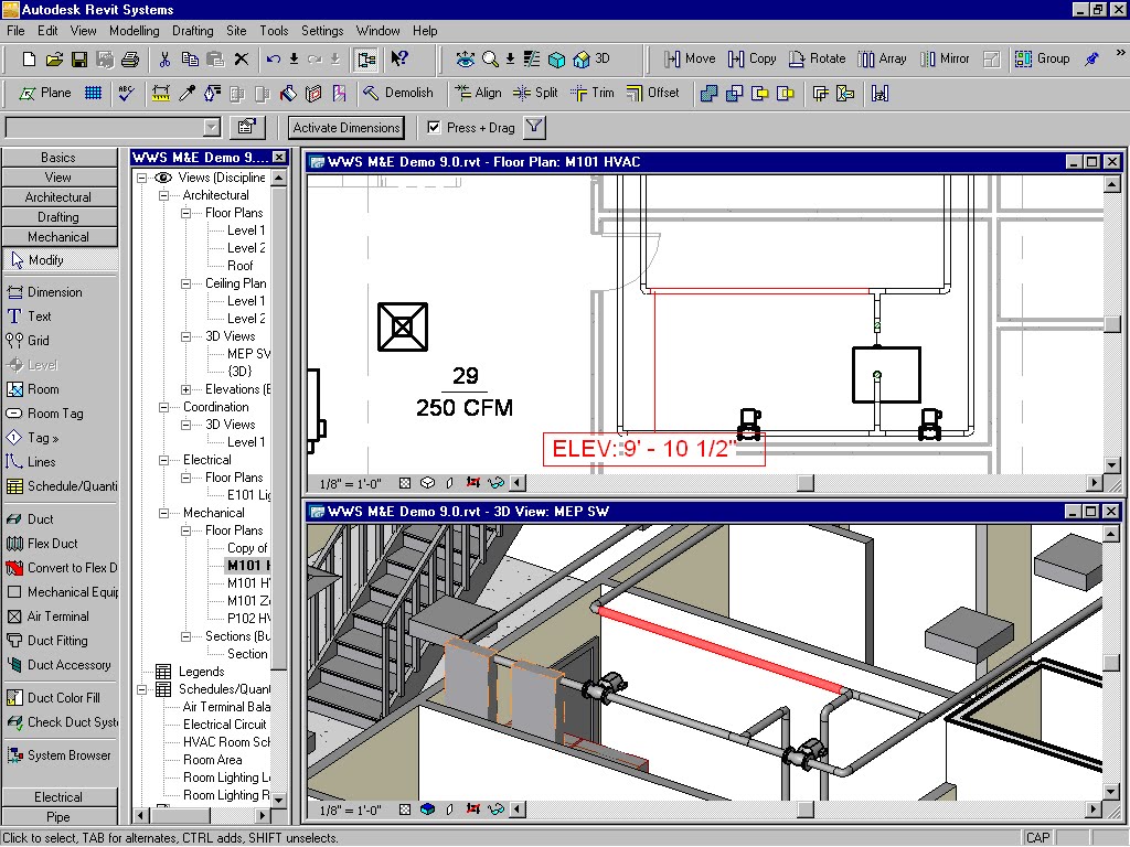
Interface—the same, yet different
Revit Systems looks, feels, and operates like its cousins, Revit Building and Revit Structure. The Design Bar of Revit Systems contains Basics, View, Architectural, Rendering, Drafting, Site, Massing, Structural, and Construction tabs. Systems-specific tabs are Basics, Mechanical, Electrical, and Pipe. The Architectural tab tools correspond to those on the Basics tab of Revit Building.
Basics tools in Systems include Room (an important feature that we will look at later); ducting and mechanical equipment placement; electrical equipment, device, wire and lighting placement; and
pipe placement. Tools on the Mechanical tab add duct fittings and accessories, color fill, and a
ducting systems check. Electrical tab tools are a panel schedule generator and circuit checker. The Pipe tab contains tools for pipe fittings and accessories, color fill, and a pipe system checker. All these tabs
include the System Browser, a new view for listing and editing MEP systems that the user creates and populates by use of the component placement tools.


Ainda que diferente, a interface básica é a mesma.
O Revit Systems 2 expressa, sente, e opera como seus primos anteriores, Revit Building e Revit Estrutura. A Barra de Projeto do Revit Systems 2 contém basicamente o cenário de visão, arquitetura, processamento de dados, redação, posição de grandeza e abas de design estrutural e de construção. Sistemas de guias específicas são básicas, Mecânica, Elétrica e encanamentos. As Ferramentas de guia de arquitetura correspondem aos acesso básico do Revit Building. Ferramentas básicas em sistemas de ambientes (uma característica importante que nós veremos mais adiante); sistemas de dutos e equipamentos mecânicos para colocação no projeto, material elétrico, dispositivos, a fiação e a colocação de iluminação e colocação de eletrodutos.
As ferramentas da guia Mecânica faz adicionar dutos, equipamentos e acessórios de  HVAC, cor de preenchimento, e um sistema de verificação de dutos. Guias de ferramentas elétricas com um gerador de calendário do painel e verificador de circuitos. A guia contém ferramentas para tubos, acessórios para tubos e outros tipos de acessórios, cor de preenchimento, e um verificador de sistema de tubulação. Todas essas abas inclui o navegador do sistema, uma nova visão de listas e de sistemas de edição que o MEP cria e preenche para o usuário para o uso de colocação de ferramentas e componentes.







Figure 1 - The Basics,Mechanical, Electrical, and Pipe tabs in Revit Systems. This illustration does not show common tools (Text, Dimension,Grid,etc.) that appear on nearly all Design Bar tabs in each version of Revit.




Figura 1 - Basicamente: Mecânica, Elétrica, e separadores de tubos no Revit Systems. Esta ilustração não mostra ferramentas comuns (texto, Dimensão, Grade, etc) que aparecem em quase todas as guias da Barra de desenho em cada versão do Revit.






3D to the maximum


As one would expect from Revit, all components are fully 3D, so that sections and elevations become views to check vertical placement relative to architectural elements (partition walls, stairwells, ceilings) or interference with structural necessities (beams, joists). Properly constructed
3D views are more useful than ever for validating components and connections.






3D ao Máximo


Como seria de se esperar do Revit System 2, todos os componentes são totalmente em 3D, de modo que as seções e elevações de vistas ao verificar o posicionamento vertical em relação à arquitetura em elementos de (divisórias, escadas, tetos) ou interferência com as necessidades estruturais de (vigas, perfis). Construído adequadamente para Visualizações 3D são mais úteis do que nunca para validar os componentes e suas conexões.






Figure 2 - 3D views of hydronic piping and air ducting with associated equipment.


Figura 2 - vistas 3D de tubulação água quente para sistemas hidrônicos e dutos de ar com equipamentos associados.

                                                                                          Smart, too


MEP design is called Systems for a good reason.Dispersed components, be they registers, fans, radiators,
cooling units, lights, switches, outlets, or panels, all need to be connected so they deliver appropriate amounts of air, water, or electric current in regulated doses. The components you place in Revit Systems know enough about themselves to make connecting pieces together to form systems fairly easy. Connection points display as snaps. Mechanical equipment connections (ducts) offer the user routing options and connect to the appropriately sized openings on the equipment, as shown below. There are tools for sizing ducting using Friction or Velocity methods. Pipe equipment knows its size and connection
points and creates connections that mate up with pipes automatically.






O Revit System 2 é moderno também...
O Mep design, é chamado de Sistemas por uma boa razão. componentes dispersos, sendo estes como: registros, ventiladores, radiadores, unidades de refrigeração, luminárias de luz, interruptores, pontos de distribuição, ou painéis, toda a necessidade de ser ligado à rede para suprir quantidades adequadas de ar, água, ou corrente elétrica em doses reguladas.
Os componentes que você coloca no Revit Siystem 2 sabemos o suficiente sobre si próprios para fazer conexão em peças para formar sistemas razoavelmente fácil. Conexão de pontos que mostra como encaixar as peças. Conexões de equipamentos mecânicos (dutos) ao oferecer ao usuário opções de roteamento e conectividade no tamanho adequado de aberturas no equipamento, como mostrado abaixo. Existem ferramentas para o dimensionamento de condutos e de unidades de fricção nos dutos utilizando métodos de Velocidade. Equipamentos de tubos reconhece o seu tamanho e conexão, pontos de conexões e cria encaixe com tubos automaticamente.








Figure 3 - Creating an air supply system to connect a room register with a fan housing.


Electrical equipment and devices connect with wiring that knows its size and rating. Electrical panel box options include a circuit editor that rebalances loads across phases. Panel wiring will resize if amperage
ratings change and panels provide warnings if their circuit capacity is exceeded.


Figura 3 - Criação de um sistema de suprimento de ar conectado a um ambiente e regulado com uma caixa de VAV de ventilador.
Os equipamentos elétricos e dispositivos de ligação com a fiação reconhece o seu tamanho e classificação.Opções da caixa eléctrica do painel incluem um editor de circuitos que carrega e reequilibra através das fases. Fiação do painel permite se redimensionar a amperagem e avaliações de mudança nos painéis fornecendo avisos se a sua capacidade no circuito é ultrapassada.






The System Browser
Once the user places or connects mechanical, electrical, or piping components, default unassigned systems of the appropriate type are created. As the design develops, the components are assigned to named systems. The System Browser is a separate window (resizable and dockable) used to filter and view these systems. As with a schedule view, the components in the System Browser are editable.


O navegador de sistema


Quando o usuário conecta ou posiciona componentes mecânicos, elétricos ou de tubulação, padrão atribuído em sistemas do tipo adequado são criados. Como o projeto desenvolve, os componentes são atribuídos a sistemas nomedos. O navegador do sistema é uma janela separada (redimensionável e acoplável) usado para filtrar e visualizar estes sistemas. Como com vista da programação, os componentes o navegador do sistema são editáveis.


Figure 4 - Steps to connect a radiator with the hot water supply pipe.Drawing the pipe creates properly
sized connecting valves and fittings.


Figura 4 - Etapas para ligar um radiador com o abastecimento de tubo com água quente. Após desenhado o tubo o programa cria corretamente o tamanho das válvulas de conexão e acessórios.
Veja a tabela abaixo.






Figure 5 - System Browser views of electrical and supply air systems.


Revit has rapidly become a worldwide standard for building design software because of its compact,
extremely efficient data handling.


O Revit rapidamente se tornou um padrão mundial para a construção de software de projeto devido a sua compacta manipulação de dados extremamente eficiente.






Upgraded room tools


Rooms in Revit hold an increasing amount of information with each new release and Revit Systems carries the use of rooms to a higher level yet. Rooms supply energy analysis information based on volume, type, and construction (windows,external walls) that can be exported to and updated from external software. Rooms also display mechanical airflow and electrical lighting/load information. Room information allows the designer to document components and requirements in system design. You can create a room Schedule that shows design versus actual supply airflow, for example, to check that the ducting system is in proper balance. Since schedules are live views, you can modify components within schedule fields or plan/section/ 3D views of a particular room.






Ferramentas atualizadas de ambientes


Ambientes no Revit realiza um aumento de quantidade de informação com cada novo lançamento e o Revit Systems desenvolve o uso de ambientes para um nível ainda mais alto. Fornecimento de informações em ambientes como energia com base em análise de volume, tipo e construção (janelas, paredes externas) que podem ser exportados e atualizados de um software externo. Os  ambientes também mostram o fluxo de ar mecânico e elétrico de iluminação e armazenamento de informação. Armazenamento de Informações permite ao projetista desenvolver componentes documentados e as necessidades do projeto do sistema. Permite criar uma programação de um ambiente que mostra o design versus prestação efetiva do fluxo de ar, por exemplo; para verificar se os condutos e o sistema está em equilíbrio. Desde horários são vizualizados ao vivo, podendo modificar componentes dentro de cronograma ou plano de campos e secção


 
Plan View of an Systems Plumbing


Plan View of an Systems VAV Distribuition Air                           Visualizações em 3D de um ambiente em especial.






Component VAV " Volume Air Variable"


Sharing across the platform Revit Systems (R1) files will open in Revit Building 9 and Revit Structure 4.
Systems components do not exhibit smart behavior (no connection point snaps on piping, for example) and system creation/editing options are not available.
Rooms in Systems files do not display systems or energy information when openein Building or Structure.






Compartilhamento de toda a plataforma
Revit Systems (R1) arquivos serão abertos no Revit Building 9 e Revit Structure 4.
Sistemas de componentes não exibem Inteligência e comportamento (ponto de conexão não se encaixe em tubulações, por exemplo) e sistema de criação e opções de edição não estão disponíveis. Ambientes em sistemas de arquivos não apresentam sistemas ou informações de energia quando aberto no Revit Building ou Structure.


Ducts Air Distribuition., um sistema de distribuição de ar típico para um ambiente genérico. 




 

















Figura 6 – Resumo de Carga de Aquecimento, Eletricidade e Analises de Enegia e sistemas de suprimento de ar.
Conclusion—get with the system Revit has rapidly become a worldwide standard for building design software because of its compact, extremely efficient data handling. Design information drives the display, not the other way around. The Revit engine successfully presents and documents the architectural and structural aspects of building design. Now the environmental systems of modern building can be designed, checked, and shared using the same interface and same database. Integration of tools has taken a significant step forward.
Conclusão: Começando com o sistema; O Revit rapidamente se tornou um padrão mundial para a construção de software de design devido ao seu modo compacto, extremamente eficiente de manipulação de dados. Unidades de informação Design no visor, sem similaridade. O Motor do Revit faz com sucesso toda a apresentação de documentos de arquitetura e estrutural inclindo aspectos do projeto de construção. Agora, o ambiente de sistemas de construção moderna podem ser concebidos, controlados e compartilhados usando a mesma interface e banco de dados.
A Integração de ferramentas teve um significativo passo á frente.









Chris Fox is the Revit editor for AUGIWorld and has written numerous articles on Revit Building and now

Revit Systems.Chris recently moved from the U.S. to Australia and is leading training classes in AutoCAD and Revit through corporate, collegiate, and technical school contacts there. Contact him at
                                                                                     .
Chris Fox é o editor do Revit para AUGIWorld e tem escrito numerosos artigos sobre Revit Building e agora Revit Systems.Chris recentemente mudou-se dos E.U. para Austrália e é líder em treinamento de aulas de AutoCAD e Revit para o meio empresarial, universitário e técnico, contactos. Contacta-lo em

lcfox@archimagecad.com.




Terça-feira 17 de outubro de 2006


Novidades no Revit Systems 2













Autodesk anunciou uma nova era para os engenheiros MEP com a introdução do Revit Systems 1. Utilizando o poder de Building Information Modeling (BIM), esta ferramenta de desenho de sistemas paramétricos plenamente deu aos engenheiros a capacidade de desenho que os arquitetos e engenheiros estruturais só tinha conhecido com o Revit. Com o Revit Systems 2, você vai encontrar melhorias para os recursos que têm vindo a confiar em nós, e muitos recursos novos que lhe dão o poder de melhorar os sistemas de seus projetos e aumentar a sua produtividade.
Projetos de Cananalização
Guia Canalização 
Você pode criar sistemas de encanamento completo utilizando a nova guia de canalização na Barra Design. O guia fornece o projeto de canalização canalização e ferramentas de análise que estão imediatamente disponíveis quando você precisar deles.








Ferramenta de criação de sistemas
Os sistemas de encanamento novo logicamente contato jogos e outros componentes do sistema em conjunto que permite que você crie caminhos layout e recuperar informações do sistema ou executar o dimensionamento eo fluxo de cálculos baseados em totais de unidades de fixação.
Basta selecionar um dispositivo elétrico de encanamento e Revit Systems 2 fornece ferramentas de criação para os tipos de conexão adequados, que estão disponíveis para o dispositivo elétrico de encanamento selecionado.


Você pode selecionar entre as seguintes ferramentas de criação de sistema de canalização:
-Cria um sistema de água quente doméstica.


-Cria um sistema doméstico de água fria.


-Cria um sanitário (resíduos / drenagem) do sistema.


Fixação Unidades
Todos os encanamentos conter unidades de fixação que lhe permite realizar cálculos tais como o fluxo. Você pode usar o valor unitário pré-fixação ou especificar um valor que irá retornar cálculos canalizações do sistema que estão mais de acordo com as especificações do seu sistema.
Cálculo automático de unidades de fixação
Você pode calcular automaticamente o total de unidades de fixação ao longo de cada sistema de encanamento, e as informações está disponível imediatamente para você usar.
Velocidade e dimensionamento de fricção
A fricção ea velocidade de dimensionamento métodos que você usa atualmente para tubagem tamanho hydronic também podem ser usados para o dimensionamento de tubos de canalização executada. Estes métodos de dimensionamento são baseados em fluxo.
Sistema de suporte do navegador para o encanamento
O navegador do sistema é uma ferramenta poderosa para confirmação e validação dos sistemas. Sistemas de canalização já foram adicionados ao navegador do sistema. A gama completa de ferramentas de Revit Systems que estão disponíveis para as disciplinas Mecânica e Elétrica estão agora disponíveis para encanamento.
Você pode:

  • Confirme afundam e as atribuições de outro sistema.
  • Ver sistema de conexões.
  • Mostrar um sistema de encanamento para localizá-lo facilmente.
  • Selecione um sistema de encanamento de imediato alvo um sistema de encanamento e começar a trabalhar nele.
  • Acesso sistema e propriedades dispositivo elétrico de encanamento, além de informações relacionadas ao projeto.

Caminho Layouts
editor Caminho Layout
O editor de layout novo caminho lhe dá a flexibilidade para mudar o encaminhamento sugerido de sua conduta e layouts de tubulação. Na visualização de layout, basta clicar e arrastar um principal ou um ramo de alterar sua rota de forma independente da rede eléctrica e outros ramos. Este novo editor permite que você modifique o layout sugerido caminhos mais em linha com os objectivos do projecto.
Mais poderoso gerador de soluções
Caminho Layout fornece vários tipos de soluções que permitem a criação de layouts baseados no esquema de layout comum. Você pode escolher entre os tipos de solução:
 · Rede Cria um esquema de uma central principal que se ramifica para conectar componentes do sistema. Este tipo de solução é normalmente utilizado para o duto.
 · Perímetro- Cria um esquema em que o principal segue ao longo de um perímetro e ramos conectar componentes do sistema. Este tipo de solução é comumente usado para a aleta do radiador, tubos hidráulicos.
· Intersecção Cria um esquema de alimentação múltiplas que se cruzam, e filiais que se conectam aos componentes do sistema. Este tipo de solução é comumente usado no encanamento.
Tanto o caminho novo layout e as actuais soluções de encaminhamento de gerar soluções mais inteligentes e mais deles para você escolher. Isso resulta em um melhor ajuste do layout geral para o projeto de sistemas.
Codificados por cores previsão principais e secundários
Facilmente identificar os principais ramos e na visualização de layout caminho para uma análise precisa dos layout mais e modificação. Mains exibir em azul e os ramos são exibidos em verde.
Enhanced Dimensionamento de tubagens e condutas
Independente ramo de dimensionamento
Você pode agora o tamanho do duto, canalização, tubos e ramos de forma independente, simplesmente selecionando um dimensionamento restrição ramo. dimensionamento restrições Branch manter uma dimensão dada ao longo do comprimento do ramo. dimensionamento Branch permite atender melhor as necessidades de fluxo e lhe dá mais controle sobre o dimensionamento em seus desenhos.
O ramo seguinte dimensionamento restrições estão disponíveis:
· tamanho calculado Só ramos tamanhos usando o método de dimensionamento selecionados (fricção, velocidade, ou ambos) e os cálculos de fluxo
· Menor Tamanho Connector- Tamanhos dos ramos de acordo com o tamanho definido no conector que o ramo está se conectando. Por exemplo, o conector em um tubo do radiador-fin.
  • Maiores de conector e calculado- ramos Tamanhos realizando as duas primeiras restrições de dimensionamento e usando a maior das duas dimensões.
Conteúdo
  • Adicionado familes equivalente métricas e modelos para a criação de conteúdo Imperial Bônus tutorial acrescentado para a criação de deputado da família
Plataforma e Revit Building 9.1